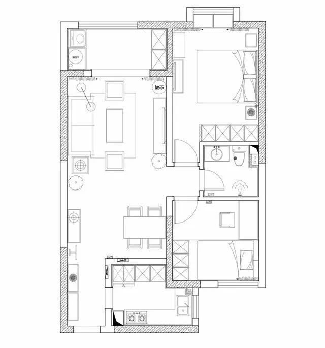
套75平米的小二房,整個空間在裝修上以簡單為基礎,結合上木質與清新的搭配,打造出一個自然舒適的溫馨質感,讓人置身其中,可以感受到一種輕松舒適的愜意感。
整個客廳在木質地板與電視柜、茶幾的基礎,結合上舒適自然的布藝沙發,再點綴上鮮艷的抱枕、清新的綠植,整個空間都呈現出一個簡潔自然的空間感;

沙發墻上掛衣服長條的建筑風格裝飾畫,搭配上溫馨怡人的射燈襯托,顯得格外的愜意精致;

舒適質感的宜家風布藝沙發,看著就感覺很舒服;

在燈光的襯托下,更是顯得自然大方;
茶幾上的精致的小擺飾,顯得格外舒適清新;

客餐廳空間的硬裝簡單整潔,木質感結合淡藍的墻面,呈現出一個自然愜意的空間感。

餐廳背景墻上掛上貓咪與小魚的裝飾畫,搭配上精致的吊燈,還有清新范的桌布,整體顯得文藝而又精致;

簡單的小餐廳,整個空間給人的感覺就是自然舒適的氛圍。

臥室的整體格調也是年輕舒適的簡約范,軟包靠背床屏讓人感覺特別舒適;

床頭柜上方的壁燈,充當臺燈的作用,而且節省了床頭柜臺面的位置,可用來放置其他的物品。

